PLAN
間取り
南大塚Ⅱ期
未来を見据えた
上質なプランニング。
Planning
暮らしを演出する、全9棟の洗練された空間設計。
家族の成長やライフステージの移り変わりと共に表情が変わる住まい。
長期にわたりゆとりある快適な暮らしを。
さまざまなライフスタイルに応えるプランニングをご提案します。
BLOCKPLAN
区画図

販売価格4,790万円(税込)より
ローンのご案内 月々均等返済例
月々13万3,990円より
ボーナス払い/頭金0円
※都市銀行、変動金利0.945%、35年払いで計算しております。
【紹介金融機関】都市銀行・地方銀行・信用金庫・信用組合・その他
※ローンは一定要件該当者が対象です。適用される金利は融資実行時のものとなり、表記されている金利・返済額と異なる場合があります。
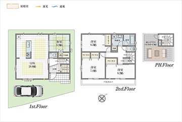
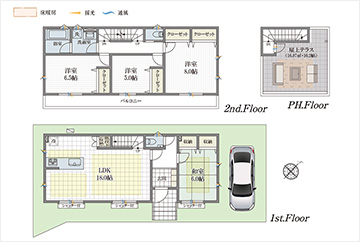
FLOOR PLAN
間取り図
販売会社概要
| 名称 | 株式会社 アイム・ユニバース |
|---|---|
| URL | https://aim-universe.co.jp/ |
| 所在地 | 東京都杉並区荻窪5-11-17 荻窪有川ビル4・5F |
| お問い合わせ先 | 03-5347-2707 |
| 宅地建物取引業者免許証番号 | 国土交通大臣(3)第8525号 |
| 加盟協会 | (公社)全日本不動産協会 / (公社)不動産保証協会 |