
中古戸建目黒区三田2丁目
JR山手線・東京メトロ南北線「目黒」駅 徒歩10分
JR山手線、埼京線・東京メトロ日比谷線「恵比寿」駅 徒歩14分



プラン
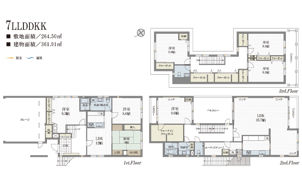
7LLDDKK、敷地面積264.50㎡、建物面積361.91㎡と広々。
2階LDK35.7帖、全室8.6帖以上あり、ゆったり過ごせる広さです。
電動シャッター付ガレージ2台駐車可(車種制限有)。
バルコニーは4ヶ所あります。
販売価格
89,800万円(税込)
キッチン
家族との
ふれあいが増える
寛ぎの空間。
こだわった空間のコミュニケーション設計が家族との距離を縮める。


寝室・書斎
様々なシーンで、
活躍する私的空間。
寝室や書斎をはじめ、自立心を育む個室の子供部屋にも。
和室は掘りごたつ付き。


プライベートスパ
ハイクラスな
安らぎの空間。
至福への入り口に誘う浴室。
広々とした浴槽は、バスタイムをより充実したリラックスタイムにしてくれる。


洗面所・トイレ
明るく清潔感のある
サニタリールーム。
広めの洗面台で、朝の支度もゆったりと。
奥行きのある収納スペースも充実。
タンクレストイレは見た目もスッキリ、節水型で汚れも付きにくい。


ギャラリー
周辺エリア
| 保育園 | 目黒保育園:徒歩5分(370m) |
|---|---|
| 幼稚園 | 目黒日本大学幼稚園:徒歩7分(550m) |
| 小学校 | 目黒区立田道小学校:徒歩3分(240m) |
| 中学校 | 目黒区立大鳥中学校:徒歩15分(1,200m) |
| スーパー | 東急ストア 目黒店:徒歩9分(650m) |
| 公園 | 田道広場公園:徒歩5分(370m) |
|---|---|
| 病院 | 東京共済病院:徒歩14分(1,100m) |
| その他 | 東京都庭園美術館:徒歩15分(1,200m) |
| その他 | 恵比寿ガーデンプレイス:徒歩9分(700m) |
現地周辺地図
物件概要
| 物件名 | 目黒区三田2丁目 |
|---|---|
| 所在地 | 東京都目黒区三田2丁目 |
| 交通 |
JR山手線・東京メトロ南北線「目黒」駅 徒歩10分 |
| 販売戸数 | 1戸 |
| 販売価格 | 89,800万円(税込) |
| 敷地面積 | 264.50㎡ |
| 建物面積 | 361.91㎡ |
| 権利形態 | 所有権 |
| 地目 | 宅地 |
| 用途地域 | 第一種低層住居専用地域 |
| 防火指定 | 準防火地域 |
| 高度地区 | 第一種高度地区 |
| 建ぺい率 | 60% |
| 容積率 | 150% |
| 構造 | 鉄骨造3階建 |
|---|---|
| 間取り | 7LLDDKK |
| 駐車場 | 2台(車種制限有) |
| 接面道路 | 北東側4.50m公道 アスファルト舗装 |
| 設備 | 東京電力・都市ガス・公共下水・公営水道 |
| 築年月 | 1993年11月 |
| 引渡し | 即日 |
| 取引態様 | 売主 |
| 施工会社 | 株式会社スペリオホーム |
※本物件に係る所有権移転登記等の手続きは売主指定の土地家屋調査士・司法書士とさせて頂きます。
※図面と現況が異なる場合は現況を優先とします。
※火災保険は特段の事情がない限り、売主指定の保険会社でご加入いただきます。
情報提供
2026年4月24日
次回更新日
情報提供より8日以内に更新
取引条件有効期限
2026年5月24日
販売会社概要
| 名称 | 株式会社 アイム・ユニバース |
|---|---|
| URL | https://aim-universe.co.jp/ |
| 所在地 | 東京都杉並区荻窪5-11-17 荻窪有川ビル4・5F |
| お問い合わせ先 | 03-5347-2707 |
| 宅地建物取引業者免許証番号 | 国土交通大臣(3)第8525号 |
| 加盟協会 | (公社)全日本不動産協会 / (公社)不動産保証協会 |















